Karploeg 107 - Zevenhuizen
📍 Zevenhuizen
🚪 3 kamers
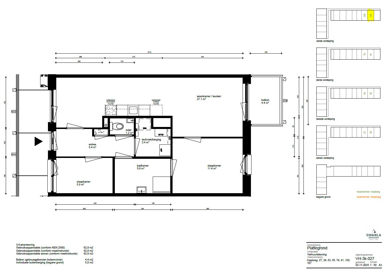
Nieuwbouwwoning te huur in Swanladriehoek – ZevenhuizenBent u op zoek naar een comfortabele en moderne woning in een groene en rustige omgeving? In de nieuwe wijk Swanladriehoek in Zevenhuizen wordt op dit moment het mooie nieuwbouwcomplex De Ploeg gebouwd. Deze 3 kamerwoning biedt alles voor een fijn en rustig thuis.Zevenhuizen is een vriendelijk dorp in de gemeente Zuidplas, tussen Rotterdam en Gouda. Hier woont u rustig, maar met alle voorzieningen in de buurt.Indeling van de woningEntree / halWoonkamer met open keukenToegang tot het balkon2 slaapkamersBadkamerBinnen berging met aansluiting voor de wasmachineEigen berging op de begane grondBijzonderhedenGelegen op de 4e verdiepingBalkon op het zuidenEnergielabel A+++De woning wordt verwarmd met een warmtepompKosten: vastrecht + huur warmtepomp (ca. € 75 per maand, prijspeil januari 2026)BijzonderhedenDe woning ligt op de 4e verdiepingBalkon op het westenEnergielabel A+++Verwarming via warmtepompKosten: vastrecht + huur warmtepomp (ca. € 50 per maand, prijspeil januari 2026)
Kenmerken
Type:
Woonruimte
Aantal kamers:
3
Energielabel:
A+++
Vertrekken
Badkamer
5.80 m²
Slaapkamer
5.90 m²
Slaapkamer
11.40 m²
Woonkamer/keuken
27.10 m²
Vergelijkbare woningen
Woning aan de Hooikade te Den Haag
Den Haag
€3.590
3 kamers
Woning aan de Amsterdamsestraat te Muiden
Muiden
€1.750
2 kamers
Woning aan de Pannesheiderstraat te Kerkrade
Kerkrade
€380
1 kamers
Woning aan de Maaskade te Rotterdam
Rotterdam
€2.350
3 kamers
Woning aan de Markt te Roosendaal
Roosendaal
€650
1 kamers
Woning aan de Langswater te Amsterdam
Amsterdam
€2.900
4 kamers
Meer woningen bekijken?
Ontdek ons volledige aanbod van huurwoningen in Nederland. Van studio's tot gezinswoningen.