Karploeg 101 - Zevenhuizen
📍 Zevenhuizen
🚪 2 kamers
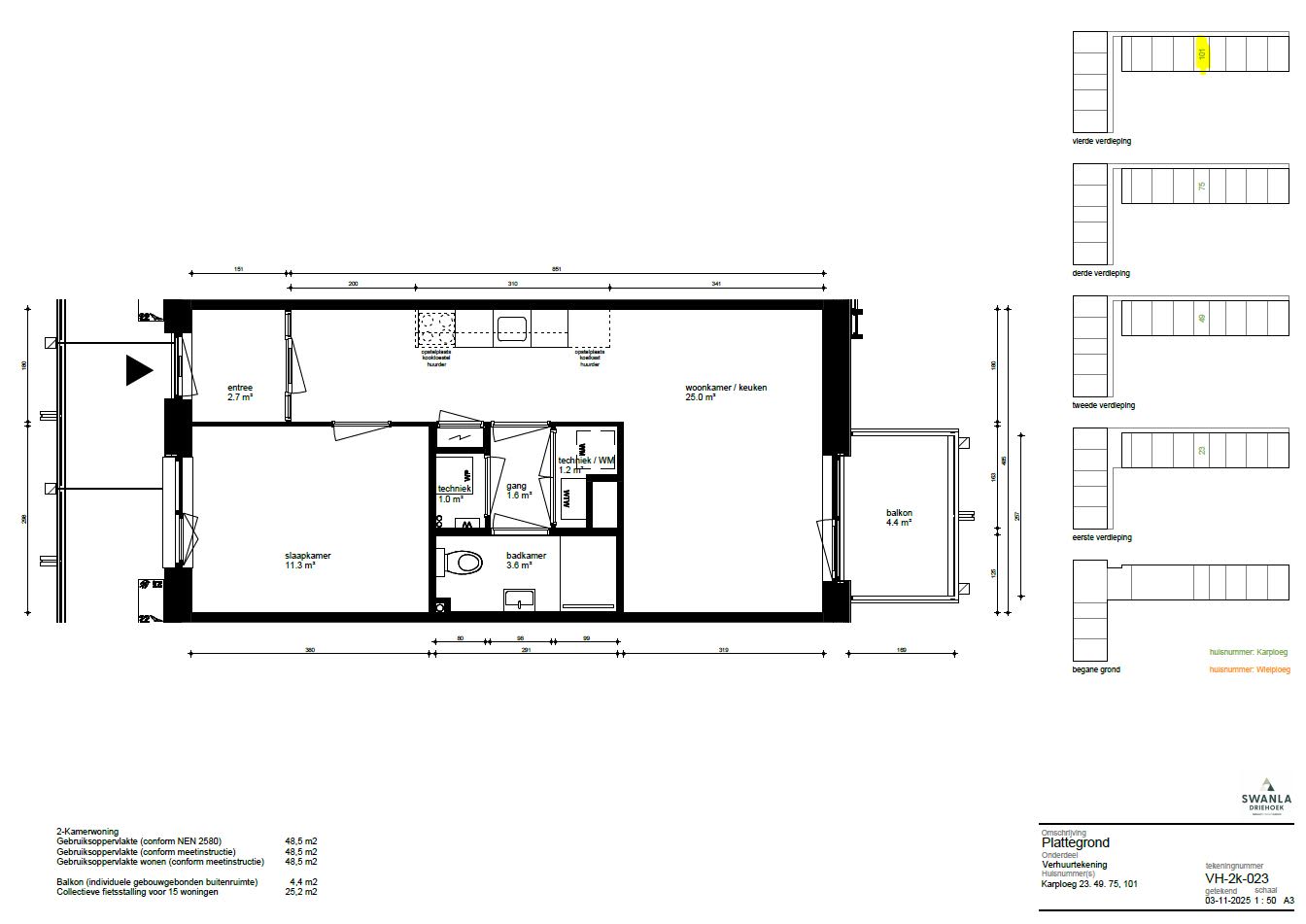
Nieuwbouwwoning te huur in Swanladriehoek – ZevenhuizenBent u op zoek naar een moderne en comfortabele woning in een rustige en groene wijk? In de nieuwe buurt Swanladriehoek in Zevenhuizen wordt het nieuwbouwcomplex De Ploeg gebouwd. In dit complex komt een fijne 2 kamerwoning beschikbaar. Deze woning is ideaal voor wie rustig wil wonen, maar toch alle voorzieningen dichtbij wil hebben.Zevenhuizen is een vriendelijk dorp in de gemeente Zuidplas, gelegen tussen Rotterdam en Gouda.Indeling van de woningEntree / halWoonkamer met open keukenToegang tot het balkon1 slaapkamerBadkamerBinnenberging met aansluiting voor de wasmachineGemeenschappelijke fietsenbergingBijzonderhedenDe woning ligt op de 4e verdiepingBalkon op het zuidenEnergielabel A+++Verwarming via warmtepompKosten: vastrecht + huur warmtepomp (ca. € 50 per maand, prijspeil januari 2026)Overige informatieServicekosten kunnen nog iets wijzigenFoto’s en plattegronden zijn een impressie; hieraan kunnen geen rechten worden ontleendVerwachte oplevering: juni 2026In mei wordt een open huis georganiseerd voor kandidaten aan wie een woning is toegewezenFysieke bezichtiging is niet mogelijk omdat het complex nog in aanbouw isU maakt uw keuze op basis van de plattegronden en informatie in de advertentieDe toewijzing gebeurt digitaal
Kenmerken
Type:
Woonruimte
Aantal kamers:
2
Energielabel:
A+++
Vertrekken
Badkamer/toilet
3.60 m²
Balkon
4.40 m²
Slaapkamer
11.30 m²
Woonkamer/keuken
25.00 m²
Vergelijkbare woningen
Woning aan de Hooikade te Den Haag
Den Haag
€3.590
3 kamers
Woning aan de Amsterdamsestraat te Muiden
Muiden
€1.750
2 kamers
Woning aan de Pannesheiderstraat te Kerkrade
Kerkrade
€380
1 kamers
Woning aan de Maaskade te Rotterdam
Rotterdam
€2.350
3 kamers
Woning aan de Markt te Roosendaal
Roosendaal
€650
1 kamers
Woning aan de Langswater te Amsterdam
Amsterdam
€2.900
4 kamers
Meer woningen bekijken?
Ontdek ons volledige aanbod van huurwoningen in Nederland. Van studio's tot gezinswoningen.