Kersentuin 65 - Woudenberg
📍 Woudenberg
🚪 3 kamers
📐 98.51 m²
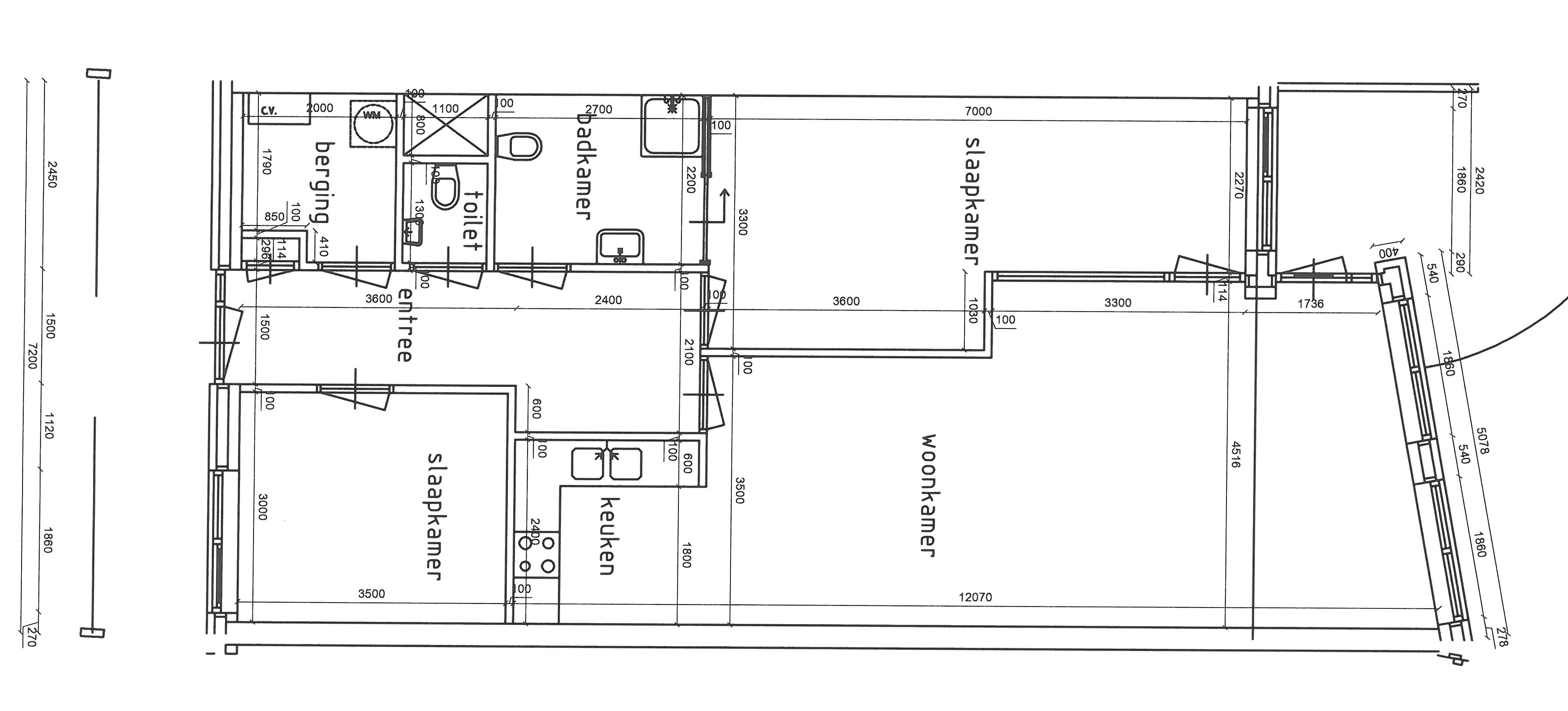
Binnenkort een fijne seniorenwoning in Woudenberg te huur!Een seniorenappartement met 2 slaapkamers en balkon vanaf 55+. Op een van de mooiste plekjes in Woudenberg. De woning bevindt zich op de 2e etage. Lift aanwezig en er is nog een aparte ruime berging. Er zijn diverse overnames aanwezig in de woning (zoals een pvc vloer (zie foto) en gordijnrails). Verder zijn er nog enkele zaken die overgenomen kunnen worden.In deze woning is de verwarming en warm water via Warmte Koude opslag systeem. Hiervoor sluit u een apart contract af met Eteck. Dit zit dus niet in de huurprijs verwerkt.BezichtigingBij de woning vindt een groepsbezichtiging plaats op maandag 16 februari 2026 om 14.00 uur. Bezichtigen is verplicht voordat de woning geaccepteerd kan worden. Let op: alleen genodigden kunnen deelnemen aan de bezichtiging.Let op: Inwonende kinderen zijn niet toegestaanVoorrang binding EemvalleiVerhuurbaar perDe woning is beschikbaar per 3 maart 2026, onder voorbehoud van eventuele werkzaamheden.Benodigde documenten voor verhuurBinnen twee werkdagen na een aanbieding ontvangen wij graag de volgende documenten, geüpload in uw Woningnet-account of per e-mail naar info@omniawonen.nl onder vermelding van het adres (let op: alleen als u een aanbieding ontvangt):De meest recente inkomensverklaring van de Belastingdienst 2024/2025 (of meest recente definitieve aanslag inkomstenbelasting) van u en van uw eventuele partner (ook als deze geen eigen inkomen heeft) U moet zelf uw BSN nummer wegstrepen. Anders mogen wij deze niet behandelen. BRP van de gezinssamenstelling + woonhistorie op te vragen bij de gemeente. Woonhistorie is ook op te vragen met uw DIGID via www.mijnoverheid.nlEen verhuurdersverklaring. Deze kunt u opvragen bij uw huidige of uw laatste verhuurder. Heeft u een koopwoning, dan zouden wij graag drie afschriften van de hypotheek willen zien.Antwoord en gegevensformulier digitaal te bereiken via https://www.omniawonen.nl/acceptatieformulier/of op papier via: Acceptatie-en-gegevensformulier.pdf (omniawonen.nl)*Aan de vermelde huurprijs en plattegrond kunnen geen rechten worden ontleend.*
Kenmerken
Type:
Woonruimte
Oppervlakte:
98.51 m²
Aantal kamers:
3
Energielabel:
A+++
Vertrekken
Wasruimte
4.57 m²
Badkamer
5.90 m²
Keuken
6.00 m²
Berging
6.10 m²
Slaapkamer
10.37 m²
Slaapkamer
18.47 m²
Woonkamer
28.70 m²
Vergelijkbare woningen
Woning aan de Hooikade te Den Haag
Den Haag
€3.590
3 kamers
Woning aan de Amsterdamsestraat te Muiden
Muiden
€1.750
2 kamers
Woning aan de Pannesheiderstraat te Kerkrade
Kerkrade
€380
1 kamers
Woning aan de Maaskade te Rotterdam
Rotterdam
€2.350
3 kamers
Woning aan de Markt te Roosendaal
Roosendaal
€650
1 kamers
Woning aan de Langswater te Amsterdam
Amsterdam
€2.900
4 kamers
Meer woningen bekijken?
Ontdek ons volledige aanbod van huurwoningen in Nederland. Van studio's tot gezinswoningen.