Langegracht 17A - Amersfoort
📍 Amersfoort
🚪 2 kamers
📐 47.17 m²
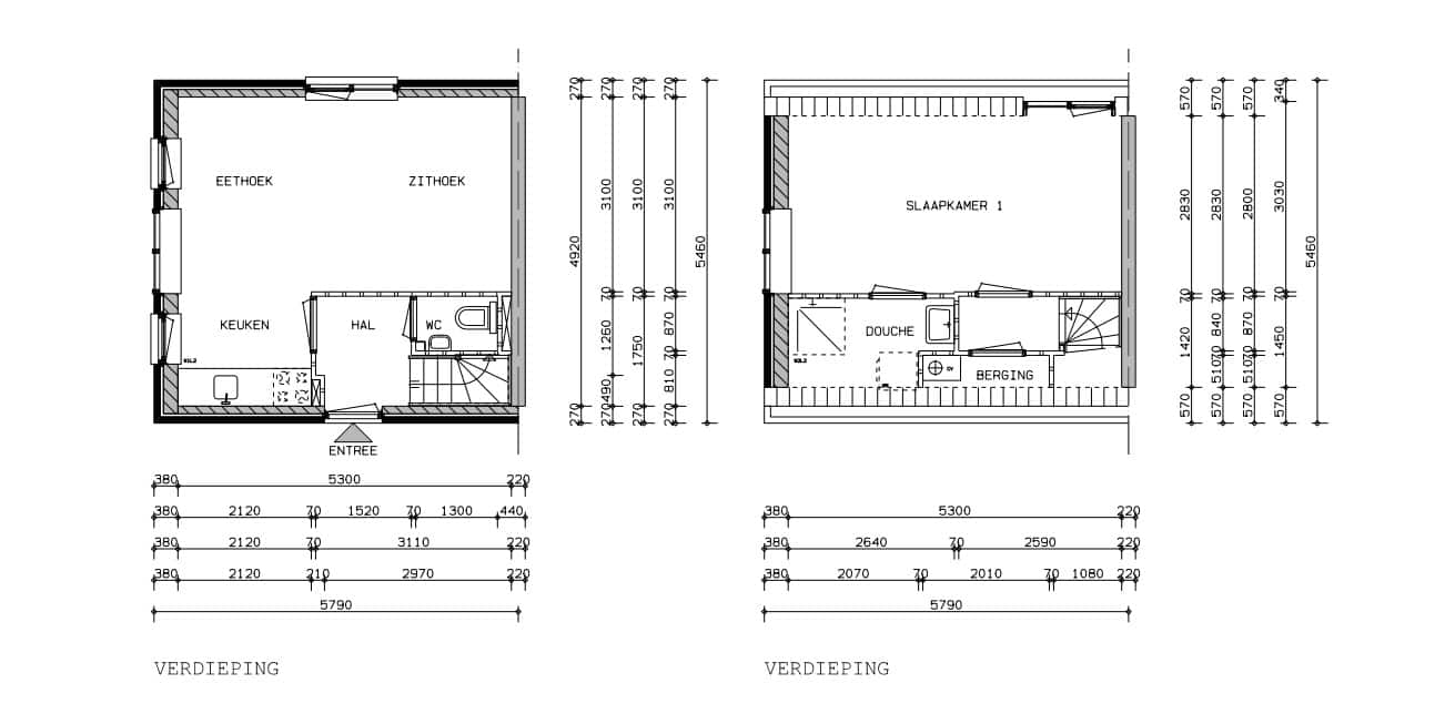
Langegracht 17A voor jongeren tot 28 jaarLeuk appartement voor jongeren tot 28 jaar. Het appartement bevindt zich op de eerste en heeft nog een tweede verdieping. Op de eerste etage bevindt zich de woonkamer met open keuken en toilet. Op de tweede etage treft u een slaapkamer en douche aan.In het complex is geen lift aanwezig. LiggingDe woning is goed bereikbaar met veel voorzieningen in de buurt. Op loopafstand van het centrum van Amersfoort. Dit betekend dat je de leef geluiden die passen bij de binnenstad mogelijk kan horen. Hou hier rekening mee. Hou er rekening mee dat je woont in het centrum van Amersfoort. Parkeren bij de woning is niet standaard mogelijk, misschien kom je in aanmerking komen voor een parkeervergunning dit kan je aanvragen bij de Gemeente Amersfoort. Omnia Wonen is hiervoor niet verantwoordelijk. Verhuurbaar perDe woning is beschikbaar per 29 januari 2026, onder voorbehoud van eventuele werkzaamheden.OvernamesIn de woning zijn diverse zaken ter overname, zoals in ieder geval de laminaatvloer in de gehele woning. Verder zijn er nog enkele zaken die overgenomen kunnen worden. BezichtigingGroepsbezichtiging is op donderdag 29 januari 2026 om 15:00 uur bij de woning. Bezichtigen is verplicht voordat de woning geaccepteerd kan worden. Let op: alleen als u wordt uitgenodigd kunt u deelnemen aan de bezichtiging.BlokverwarmingIn het appartement is blokverwarming aanwezig. Bij blokverwarming (ook wel stadsverwarming genoemd) worden meerdere huizen verwarmd door dezelfde ketel. Huizen die op blokverwarming zijn aangesloten, hebben ook geen eigen cv-ketel. De kosten van de blokverwarming zijn mee genomen in de servicekosten.De woning is voorzien van een huurboiler voor het warme water. Als huurder zul je hiervoor zelf een contract moeten afsluiten. Dit zulle extra kosten zijn. Dit is geen verantwoordelijkheid voor de woningbouw. De kosten hiervan zullen ongeveer € 15,- per maand bedragen. * onder voorbehoud van wijzigingen en fouten. VerduurzaamheidswerkzaamhedenBegin 2027 zullen er verduurzaamheidswerkzaamheden plaatsvinden aan dit gebouw. Samen met onze leverancier zijn wij momenteel bezig met het opstellen van plannen en een planning. Deze planning is nog niet definitief; hieraan kunnen dan ook geen rechten worden ontleend.Door het uitvoeren van deze verduurzaamheidswerkzaamheden zal de woning een hoger energielabel krijgen.Benodigde documenten voor verhuur (uiterlijk binnen 2 werkdagen naar aanbieding bij ons binnen zijn)Binnen twee werkdagen na een aanbieding ontvangen wij graag de volgende documenten, geüpload in uw Woningnet-account of per e-mail naar info@omniawonen.nl onder vermelding van het adres (let op: alleen als u een aanbieding ontvangt):De meest recente inkomensverklaring van de Belastingdienst 2024 of 2025 (of meest recente definitieve aanslag inkomstenbelasting) van u en van uw eventuele partner (ook als deze geen eigen inkomen heeft) U moet zelf uw BSN nummer wegstrepen. Anders mogen wij deze niet behandelen. BRP van de gezinssamenstelling + woonhistorie op te vragen bij de gemeente. Woonhistorie is ook op te vragen met uw DIGID via www.mijnoverheid.nlEen verhuurdersverklaring. Deze kunt u opvragen bij uw huidige of uw laatste verhuurder. Heeft u een koopwoning, dan zouden wij graag drie afschriften van de hypotheek willen zien.Antwoord en gegevensformulier digitaal te bereiken via https://www.omniawonen.nl/acceptatieformulier/of op papier via: Acceptatie-en-gegevensformulier.pdf (omniawonen.nl)*Aan de vermelde huurprijs en plattegrond kunnen geen rechten worden ontleend.*
Kenmerken
Type:
Woonruimte
Oppervlakte:
47.17 m²
Aantal kamers:
2
Energielabel:
F
Vertrekken
Badkamer
4.00 m²
Keuken
4.00 m²
Slaapkamer
16.00 m²
Woonkamer
16.00 m²
Vergelijkbare woningen
Appartement - Stadsring/Amersfoort (€2750.00/83.00m2)
Amersfoort
€2.750
3 kamers
Huurwoning - Kuinrestraat/Amersfoort (€2500.00/150.00m2)
Amersfoort
€2.500
6 kamers
Appartement - Rietzangerstraat/Amersfoort (€865.00/89.00m2)
Amersfoort
€865
4 kamers
Appartement - Groningerstraat/Amersfoort (€1905.00/118.00m2)
Amersfoort
€1.905
3 kamers
Huurwoning - Triangelstraat/Amersfoort (€1950.00/100.00m2)
Amersfoort
€1.950
3 kamers
Appartement - Ringweg Randenbroek/Amersfoort (€940.00/74.00m2)
Amersfoort
€940
3 kamers
Meer woningen bekijken?
Ontdek ons volledige aanbod van huurwoningen in Nederland. Van studio's tot gezinswoningen.