Lindenlaan 47 - Woudenberg
š Woudenberg
šŖ 4 kamers
š 95.07 m²
Lindenlaan 47 Vrije sector woning minimaal 2 of meer persoonshuishoudenTe huur: ruim en modern 4 kamer appartement (3 slaapkamers).Het appartement heeft een open keuken en ruime woonkamer. Het appartement beschikt ook over een ruim balkon.Het gehele appartement is voorzien van vloerverwarming. Deze werkt via een Warmte Koude Opslag Systeem. Hiervoor sluit u een contract af met de firma Eteck.Bezichtiging:Bij deze woning is de bezichtiging verplicht. Let op: woning staat langer online. Het kan zijn dat de woning tussentijds al verhuurd wordt.Voorwaarden:Inkomenseis: minimaal 4x de huurprijs bruto per jaar inkomen.Minimaal 2 of meer persoonshuishoudenVrije kandidaat selectie door Omnia WonenĀ Benodigde documenten voor verhuring (uiterlijk binnen 2 werkdagen naar aanbieding bij ons binnen zijn)Onderstaande documenten hebben wij nodig voor de verhuring.Ā Deze kunt u uploaden op u Woningnet account of mailen naar info@omniawonen.nl onder vermelding van het adres**Let op alleen als u een definitieve aanbieding krijgt**De meest recente inkomensverklaring van de Belastingdienst (of meest recente definitieve aanslag inkomstenbelasting) van u en van uw eventuele partner (ook als deze geen eigen inkomen heeft). U moet zelf uw BSN nummer wegstrepen en het kenmerknummer. Anders mogen wij deze niet behandelen.BRP van de gezinssamenstelling + woonhistorie op te vragen bij de gemeente. Woonhistorie is ook op te vragen met uw DIGID viaĀ mijnoverheid.nlEen verhuurdersverklaring. Deze kunt u opvragen bij uw huidige of uw laatste verhuurder. Heeft u een koopwoning, dan zouden wij graag hypotheek verklaring ontvangen.Antwoord en gegevensformulier digitaal te bereiken via https://www.omniawonen.nl/acceptatieformulier/Ā of op papier via:Ā Acceptatie-en-gegevensformulier-Amersfoort-Woudenberg.pdf (omniawonen.nl)Bent u gescheiden, niet langer geregistreerd partners of woont u niet meer samen? Dan mag u uw kinderen alleen op uw inschrijving vermelden als zij hun hoofdverblijfplaats bij u hebben of als er sprake is van co-ouderschap. In geval van co-ouderschap mogen beide ouders de kinderen op hun inschrijving vermelden. Op het moment dat u een woning accepteert, vraagt de verhuurder u om aan te tonen dat de kinderen terecht op uw inschrijving staan vermeld. Dit kan aan de hand van een gerechtelijke uitspraak, een echtscheidingsconvenant of een ouderschapsplan.Wijkinformatie:Heeft een klein deel oudere bebouwing dat bestaat uit grote vrijstaande koopwoningenlangs de Stationsweg en enkele bedrijven. Aansluitend wordt hier de uitbreidingswijk Het Groene Woud in fases gerealiseerd. Er wordt veel aandacht besteed aan speel- en groenvoorzieningen/vijvers. De wijk ligt wat verder af van het centrum en winkelgebied maar dit is op de fiets prima bereikbaar. De volgende voorzieningen vindt u in deze wijk: Basisonderwijs: Reformatorische basisschool. Manege Groenewoude.
Kenmerken
Type:
Woonruimte
Oppervlakte:
95.07 m²
Aantal kamers:
4
Energielabel:
A
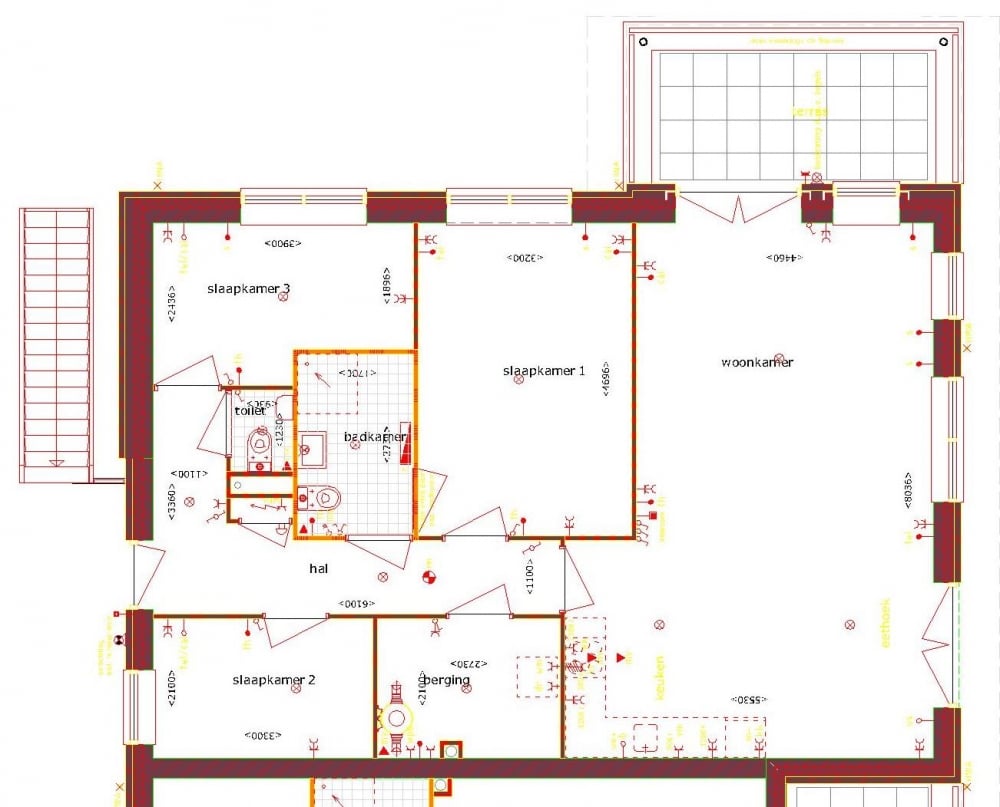
Vertrekken
Keuken
0.01 m²
Badkamer
4.70 m²
Wasruimte
5.50 m²
Slaapkamer
6.90 m²
Berging
7.30 m²
Slaapkamer
8.50 m²
Slaapkamer
15.00 m²
Woonkamer
39.30 m²
Vergelijkbare woningen
Woning aan de Hooikade te Den Haag
Den Haag
ā¬3.590
3 kamers
Woning aan de Amsterdamsestraat te Muiden
Muiden
ā¬1.750
2 kamers
Woning aan de Pannesheiderstraat te Kerkrade
Kerkrade
ā¬380
1 kamers
Woning aan de Maaskade te Rotterdam
Rotterdam
ā¬2.350
3 kamers
Woning aan de Markt te Roosendaal
Roosendaal
ā¬650
1 kamers
Woning aan de Langswater te Amsterdam
Amsterdam
ā¬2.900
4 kamers
Meer woningen bekijken?
Ontdek ons volledige aanbod van huurwoningen in Nederland. Van studio's tot gezinswoningen.