Looiersstraat 6 - Kerkdriel
📍 Kerkdriel
🚪 4 kamers
📐 64.00 m²
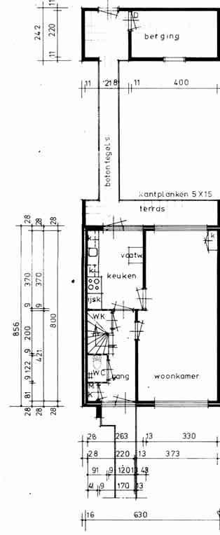
Tussenwoning met drie slaapkamers en een vaste trap naar de zolder. OvernamesEr zijn spullen ter overname van de vorige huurder.Let erop dat het onderhoud van de overnames volledig voor de huurder is.
Kenmerken
Type:
Woonruimte
Oppervlakte:
64.00 m²
Aantal kamers:
4
Energielabel:
A+
Vertrekken
Slaapkamer
9.00 m²
Slaapkamer
12.00 m²
Slaapkamer
15.00 m²
Woonkamer
28.00 m²
Vergelijkbare woningen
Woning aan de Hooikade te Den Haag
Den Haag
€3.590
3 kamers
Woning aan de Amsterdamsestraat te Muiden
Muiden
€1.750
2 kamers
Woning aan de Pannesheiderstraat te Kerkrade
Kerkrade
€380
1 kamers
Woning aan de Maaskade te Rotterdam
Rotterdam
€2.350
3 kamers
Woning aan de Markt te Roosendaal
Roosendaal
€650
1 kamers
Woning aan de Langswater te Amsterdam
Amsterdam
€2.900
4 kamers
Meer woningen bekijken?
Ontdek ons volledige aanbod van huurwoningen in Nederland. Van studio's tot gezinswoningen.