Morgenkamp 43 - Bunschoten-Spakenburg
📍 Bunschoten-spakenburg
🚪 3 kamers
📐 43.60 m²
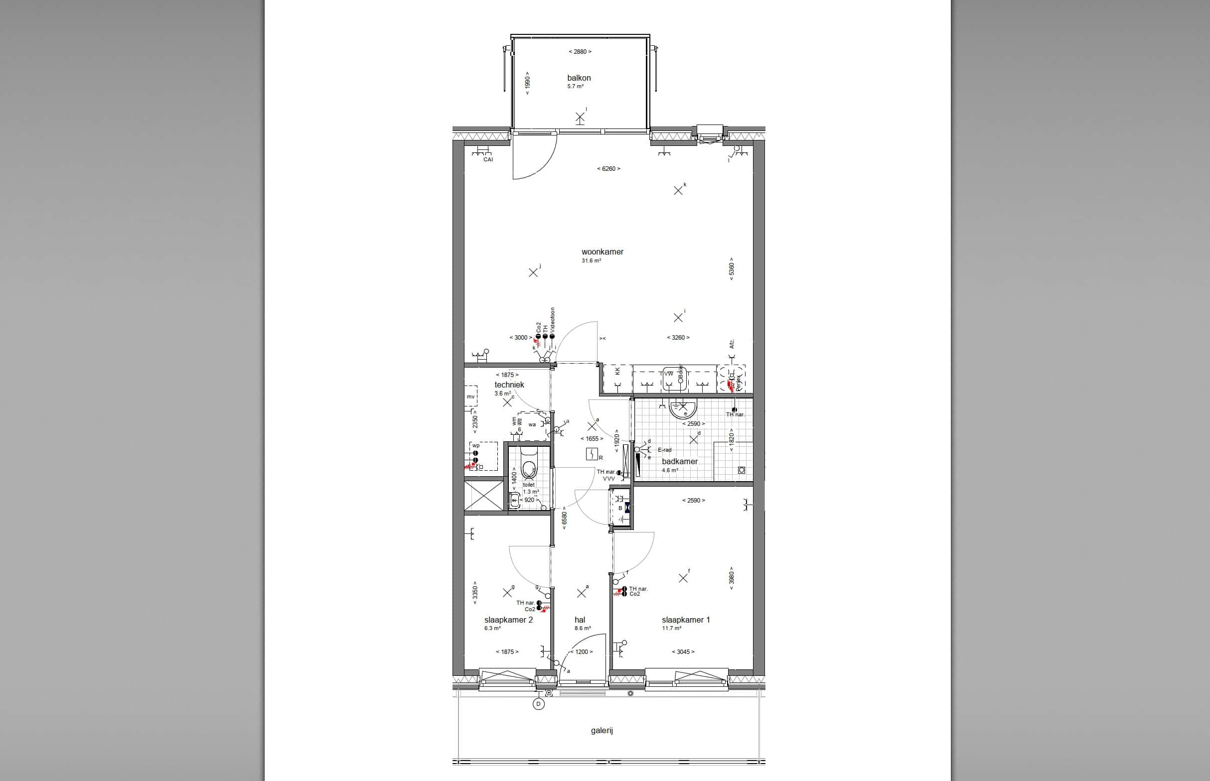
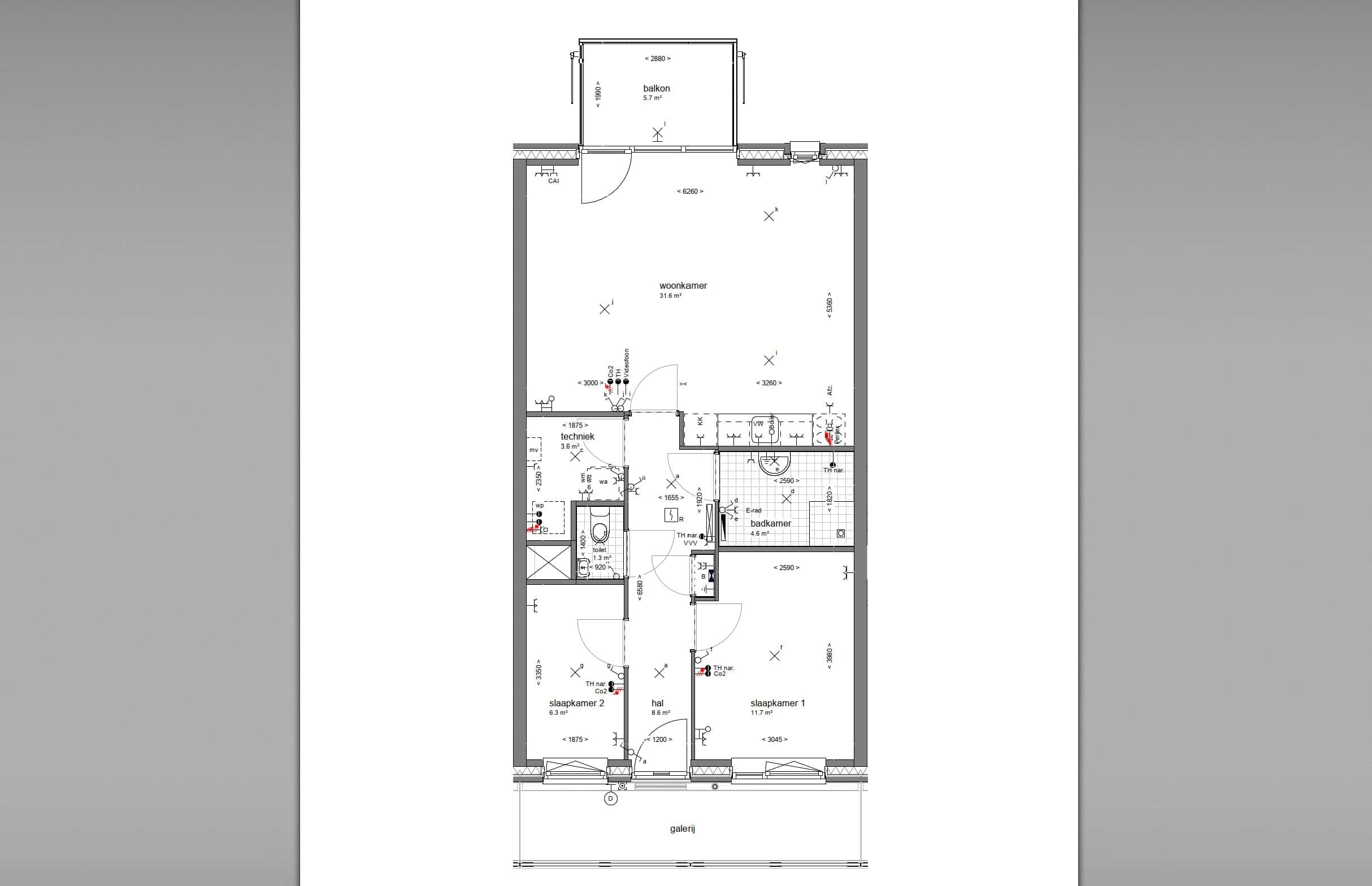
Ruim 3-kamer appartement op de tweede verdieping met lift.Via de hal zijn alle vertrekken bereikbaar. De woonkamper met open keuken heeft vanwege de hoge ligging een mooi uitzicht over de omgeving. Het gebouw ligt op eiland 3 in de wijk Rengerwetering en is gebouwd in 2020.De appartementen in het gebouw zijn energiezuinig en zonder gasaansluiting, dit betekent dat er alleen elektrisch gekookt kan worden. Een warmtepomp in combinatie met een boiler zorgt voor de verwarming en het warme water. Het appartement is voorzien van vloerverwarming en een elektrische handdoekradiator in de badkamer.
Kenmerken
Type:
Woonruimte
Oppervlakte:
43.60 m²
Aantal kamers:
3
Energielabel:
A
Vertrekken
Slaapkamer
6.30 m²
Slaapkamer
11.70 m²
Woonkamer
25.60 m²
Vergelijkbare woningen
Woning aan de Hooikade te Den Haag
Den Haag
€3.590
3 kamers
Woning aan de Amsterdamsestraat te Muiden
Muiden
€1.750
2 kamers
Woning aan de Pannesheiderstraat te Kerkrade
Kerkrade
€380
1 kamers
Woning aan de Maaskade te Rotterdam
Rotterdam
€2.350
3 kamers
Woning aan de Markt te Roosendaal
Roosendaal
€650
1 kamers
Woning aan de Langswater te Amsterdam
Amsterdam
€2.900
4 kamers
Meer woningen bekijken?
Ontdek ons volledige aanbod van huurwoningen in Nederland. Van studio's tot gezinswoningen.