+1
Mulderstraat 32 - Gameren
📍 Gameren
🚪 3 kamers
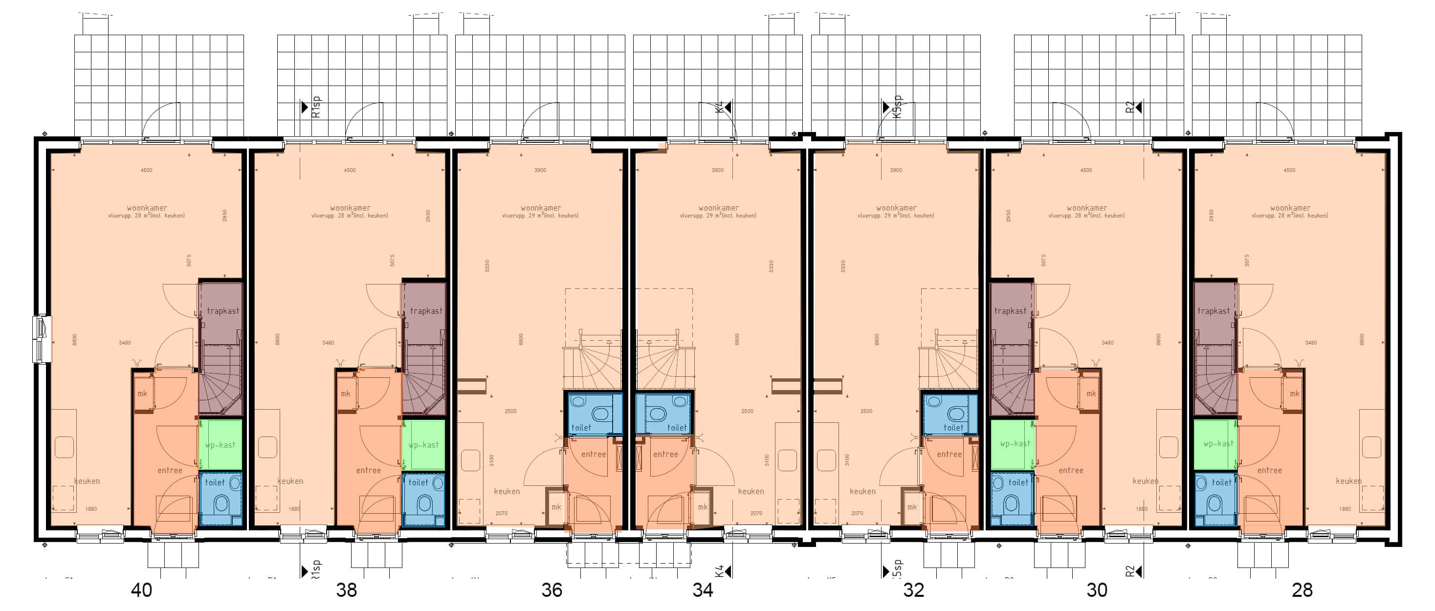
Voorrang Herstructureringsurgenten van de KernenDeze woning is bouwnummer 74 op de plattegrond (pagina 8) in de brochure.Opleverdatum is onder voorbehoud. Deze moderne nieuwbouw tussenwoning bestaat uit drie verdiepingen en biedt een functionele en comfortabele indeling. De woning is praktisch ingedeeld, waarbij elke verdieping een eigen functie heeft.Begane grondEntree: Zodra u binnenkomt, treft u een hal met toegang tot de meterkast, het toilet en de trap naar de eerste verdieping.Woonkamer met open keuken: De woonkamer biedt veel licht en ruimte, waarbij de open keuken uitnodigt tot gezellig samenzijn en koken. Het woongedeelte vormt het hart van het huis, waar u samenkomt met familie en vrienden.Eerste verdiepingTwee slaapkamers: Op deze verdieping bevinden zich twee comfortabele slaapkamers.Badkamer: De moderne badkamer is uitgerust met een douche en een tweede toilet, waardoor het ochtendritueel soepel verloopt en privacy gewaarborgd is.ZolderverdiepingToegankelijk via vaste trap: De zolder is bereikbaar via een vaste trap, wat zorgt voor een gemakkelijke toegang.Deze verdieping is niet geschikt om te slapen, maar biedt wel ruimte om een wasmachine en droger te plaatsen. Dit maakt het een ideale plek om de was te doen zonder dat het storend is in de woonruimtes.Technische apparatuur: Op zolder vindt u ook de technische installaties van de woning, zoals de cv-ketel en eventuele ventilatie- of warmtepompinstallaties.SamenvattingDeze nieuwbouwwoning onderscheidt zich door een doordachte indeling: een gezellige begane grond met open keuken en woonkamer, een eerste verdieping met 2 ruime slaapkamers en een badkamer met tweede toilet en een praktische zolder voor huishoudelijke apparatuur en techniek. Kortom, een huis waar u zich snel thuis zult voelen!Uitgebreide informatie staat in de brochure, die u vindt bij de downloads.Gameren is een gezellig dorp in de gemeente Zaltbommel. Er wonen ongeveer 2.285 mensen. Het dorp ligt vlak bij de Waal, in een groene en rustige omgeving. U woont hier landelijk, met veel ruimte om u heen.In Gameren vindt u een basisschool, een supermarkt en sportverenigingen. Er worden regelmatig activiteiten georganiseerd, waar u andere bewoners kunt ontmoeten. Voor meer winkels en voorzieningen kunt u naar Zaltbommel of Kerkdriel. Deze plaatsen liggen vlakbij.De A2 en het station van Zaltbommel zijn goed bereikbaar. Zo bent u snel in Den Bosch, Utrecht of Geldermalsen.
Kenmerken
Type:
Woonruimte
Aantal kamers:
3
Energielabel:
A++++
Vertrekken
Slaapkamer
12.10 m²
Slaapkamer
12.10 m²
Woonkamer/keuken
29.20 m²
Vergelijkbare woningen
Woning aan de Hooikade te Den Haag
Den Haag
€3.590
3 kamers
Woning aan de Amsterdamsestraat te Muiden
Muiden
€1.750
2 kamers
Woning aan de Pannesheiderstraat te Kerkrade
Kerkrade
€380
1 kamers
Woning aan de Maaskade te Rotterdam
Rotterdam
€2.350
3 kamers
Woning aan de Markt te Roosendaal
Roosendaal
€650
1 kamers
Woning aan de Langswater te Amsterdam
Amsterdam
€2.900
4 kamers
Meer woningen bekijken?
Ontdek ons volledige aanbod van huurwoningen in Nederland. Van studio's tot gezinswoningen.