+1
Oostlaan 301 - Veendam
📍 Veendam
🚪 2 kamers
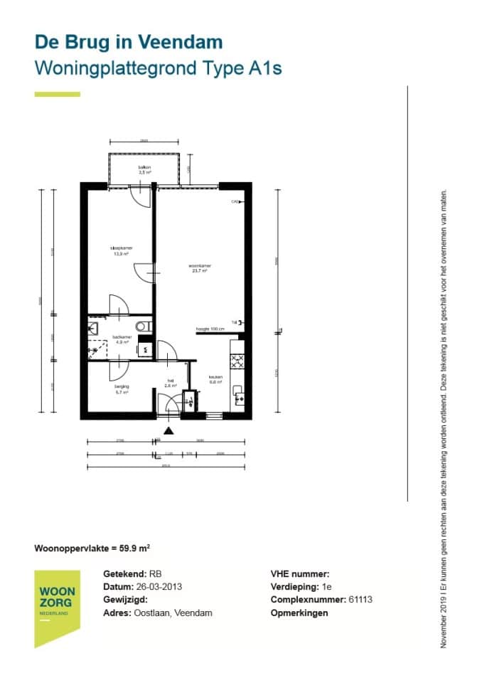
Wooncomplex De Brug ligt aan de westzijde van Veendam, in de wijk Sorghvliet, vlak bij het Borgerpark. In de buurt vindt u een winkelcentrum voor de dagelijkse boodschappen en een bushalte op korte afstand.De Brug bestaat uit sociale huurwoningen voor 55-plussers. Het complex heeft 40 tweekamerwoningen verdeeld over drie verdiepingen. In het complex is een recreatieruimte waar bewoners samen kunnen komen voor activiteiten. Ook is er een gemeenschappelijke berging en openbare parkeergelegenheid direct naast het gebouw.De bewonersconsulent is het aanspreekpunt voor alle huurders. Deze persoon maakt u wegwijs in uw nieuwe woonomgeving, ziet erop toe dat u prettig en rustig woont en zorgt ervoor dat u precies de service krijgt die u wenst.De woningen hebben een oppervlakte van circa 60 m². Het gaat om tweekamerwoningen, verdeeld over drie verdiepingen. De verdiepingen zijn bereikbaar met de trap en de lift. De woningen zijn gelijkvloers, drempelvrij en hebben een balkon of terras. De woningen zijn drempelvrij en beschikken over een balkon of terras.
Kenmerken
Type:
Woonruimte
Aantal kamers:
2
Vertrekken
Badkamer/toilet
5.20 m²
Keuken
8.80 m²
Slaapkamer
14.30 m²
Woonkamer
22.00 m²
Vergelijkbare woningen
Woning aan de Hooikade te Den Haag
Den Haag
€3.590
3 kamers
Woning aan de Amsterdamsestraat te Muiden
Muiden
€1.750
2 kamers
Woning aan de Pannesheiderstraat te Kerkrade
Kerkrade
€380
1 kamers
Woning aan de Maaskade te Rotterdam
Rotterdam
€2.350
3 kamers
Woning aan de Markt te Roosendaal
Roosendaal
€650
1 kamers
Woning aan de Langswater te Amsterdam
Amsterdam
€2.900
4 kamers
Meer woningen bekijken?
Ontdek ons volledige aanbod van huurwoningen in Nederland. Van studio's tot gezinswoningen.