Orionweg 123 - IJmuiden
📍 Ijmuiden
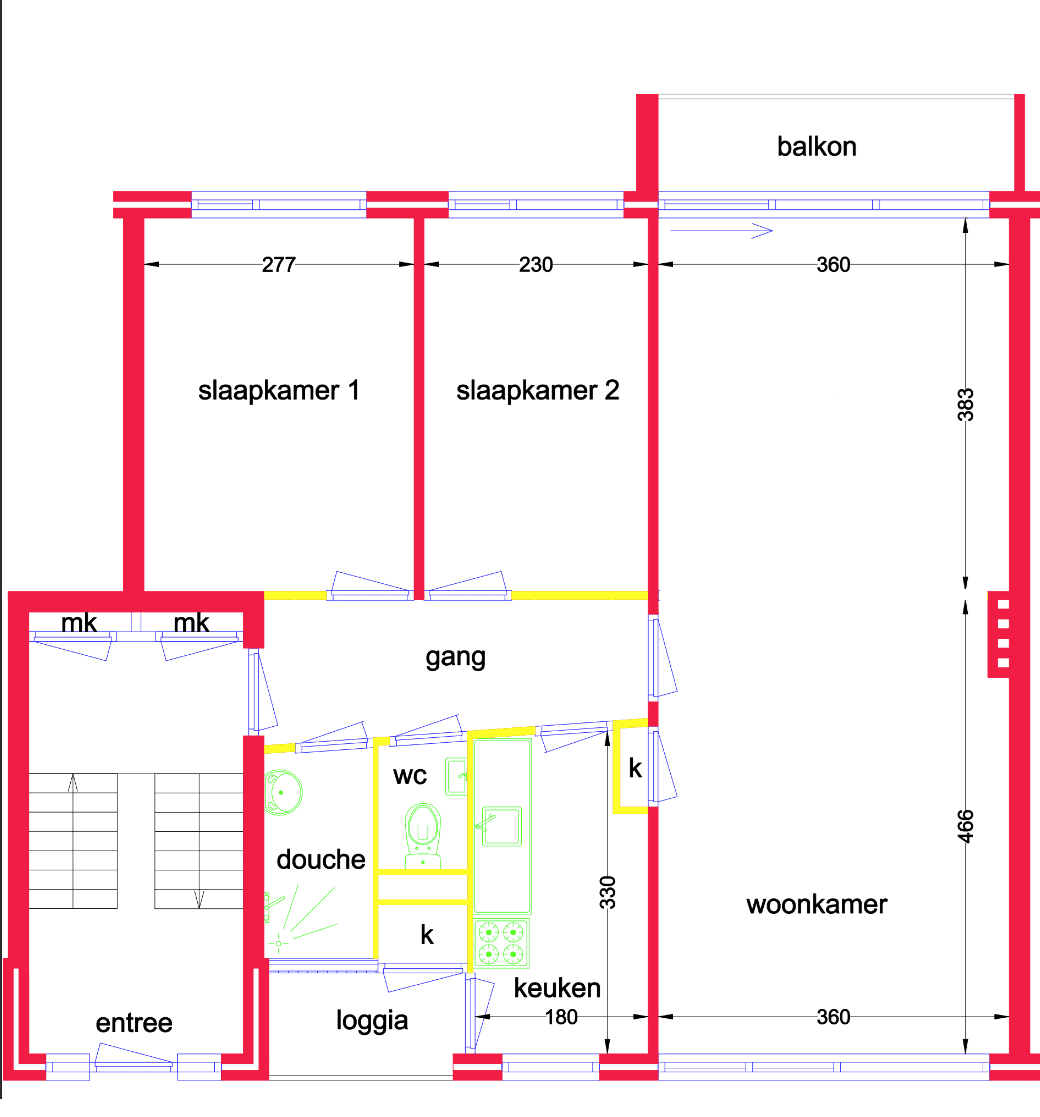
🚪 3 kamers
Let op: Woning zonder verwarming! De toekomst van de woning is onbekend. De kans bestaat dat deze woning op termijn wordt gesloopt. Ben jij een handige klusser en opzoek naar je eerste woning? Om de woningnood aan te pakken verhuren wij woningen die in de toekomst waarschijnlijk gesloopt worden. Hou daarom rekening met: Verhuizen als er inderdaad gesloopt wordt (bewoners horen dit uiterlijk 2 jaar vooraf aan de sloop). Minimaal onderhoud. Geen verwarming aanwezig. Als de woning wordt gesloopt krijg je urgentie voor een andere woning in de regio en krijg je een verhuiskostenvergoeding. Omdat de toekomst van de woning onbekend is doen we minimaal onderhoud in deze woning. Dit houdt in dat hier geen centrale verwarming wordt geplaatst. De woning moet verwarmd worden door een gaskachel. Je bent zelf verantwoordelijk voor het aanschaffen en onderhouden van de gaskachel. Ook wordt bijvoorbeeld een kapotte keuken gerepareerd, en niet vervangen. Wij zorgen voor een woning die veilig, heel en schoon is. Jij maakt hier een THUIS van! Woning informatie 3-kamerwoning (2 slaapkamers) Energie label F 1e verdieping Vloer zelf leggen Muren zelf behangen/schilderen Externe berging Zie jij het wel zitten om een kluswoning te accepteren op fietsafstand van het strand en vaste klant te worden bij een van de vele leuke hippe tentjes in de buurt? Reageer dan nu en dan zien we je graag op de bezichtiging! In de buurt Openbaar vervoer op loopafstand Winkels Supermarkt Bezichtiging De eerste 10 kandidaten ontvangen een uitnodiging voor de groepsbezichtiging. De datum van de groepsbezichtiging volgt later.
Kenmerken
Type:
Woonruimte
Aantal kamers:
3
Energielabel:
F
Vertrekken
Badkamer
2.40 m²
Keuken
5.65 m²
Berging
8.56 m²
Slaapkamer
8.81 m²
Slaapkamer
10.61 m²
Woonkamer
30.57 m²
Vergelijkbare woningen
Woning aan de Hooikade te Den Haag
Den Haag
€3.590
3 kamers
Woning aan de Amsterdamsestraat te Muiden
Muiden
€1.750
2 kamers
Woning aan de Pannesheiderstraat te Kerkrade
Kerkrade
€380
1 kamers
Woning aan de Maaskade te Rotterdam
Rotterdam
€2.350
3 kamers
Woning aan de Markt te Roosendaal
Roosendaal
€650
1 kamers
Woning aan de Langswater te Amsterdam
Amsterdam
€2.900
4 kamers
Meer woningen bekijken?
Ontdek ons volledige aanbod van huurwoningen in Nederland. Van studio's tot gezinswoningen.