+6
Rijnstraat 4G - Ingen
📍 Ingen
🚪 3 kamers
📐 82.00 m²
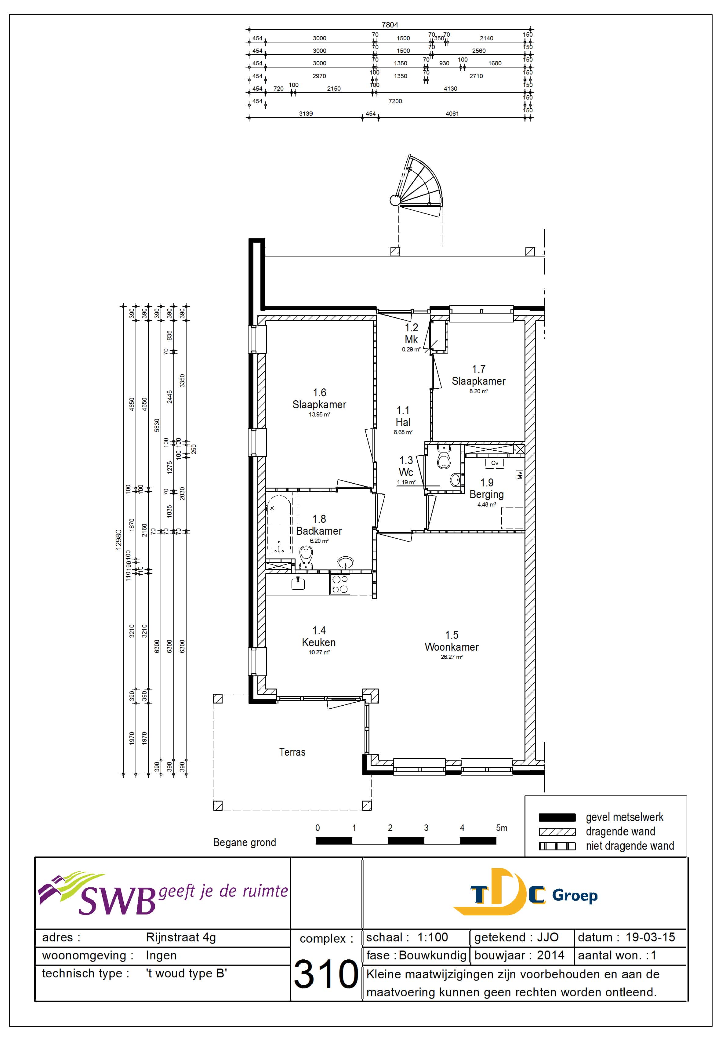
Bent u op zoek naar een ideale woning in het hart van Ingen?Dit appartement is gelegen in complex 't Woud aan de Rijnstraat 4G in Ingen. Het appartement is gelegen op de begane grond op een hoek.Er is een lift aanwezig in het complex.Indeling van de woningWoonkamer: knusse woonkamer met veel lichtinvalKeuken: direct aansluitend op de woonkamer vindt u een open keuken met afzuigkap, geschikt voor elektrisch koken. Keukenvervanging mogelijk.Slaapkamers: twee slaapkamers aanwezigBadkamer: compacte badkamerBuiten: aangrenzend aan de woonkamer zit het buitenplaatsjeVoorzieningen in de buurtIngen is een landelijk dorp in de gemeente Buren, midden tussen de fruitbomen. Neem je de pont over de Nederrijn dan sta je in het Utrechtse Elst. In Ingen zijn veel eengezinswoningen en de nodige voorzieningen voor kinderen. Denk aan een kinderdagverblijf, basisschool en voetbal- en gymnastiekvereniging. Ook voor senioren zijn er veel woningen in Ingen, evenals een actieve buurtvereniging, kerk en dorpscafé. Voor de boodschappen biedt het naastgelegen Lienden voldoende aanbod.Voor uitgebreide informatie over de buurt kunt u terecht op www.postcodebijadres.nl.Overname van spullenIn deze woning zijn de volgende overnames: gordijnen en novylon. EnergievoorzieningenDe woning beschikt over perilex aansluiting voor elektrisch koken. Voor wie is deze woning geschikt?Deze woning is speciaal bedoeld voor stellen/echtparen of alleenstaanden die meedoen met het doorstroombeleid 55+. Maximale gezinsgrootte 2 personen. Alleen voor huishoudens zonder kinderen. Controleer of deze woning geschikt is voor uw situatie door in te loggen en uw inkomensgegevens in te vullen.Wilt u weten of u in aanmerking komt voor huurtoeslag? Maak een proefberekening via www.toeslagen.nl om verrassingen te voorkomen.Hoe verloopt het proces?Na sluiting van de reactietermijn ontvangen de eerste 3 kandidaten een uitnodiging voor de bezichtiging. Indien zij geen belangstelling hebben of niet voldoen aan de voorwaarden, worden de volgende 3 kandidaten benaderd. VoorwaardenBij acceptatie van de woning moet u uw inkomen aantonen met een inkomensverklaring over 2024 of 2025. Dit geldt ook voor een eventuele mede-inschrijver en andere volwassenen die meeverhuizen.Vraag uw inkomensverklaring eenvoudig aan via www.mijnbelastingdienst.nl met uw DigiD.Heeft u geen DigiD? Bel dan de Belastingdienst via 0800-0543 met uw burgerservicenummer bij de hand. U ontvangt de verklaring binnen vijf werkdagen.Houd er rekening mee dat u bij het reageren op de woning al over de inkomensverklaring beschikt en het bedrag uit de verklaring in uw profiel heeft ingevuld.De advertentie is gewijzigd op 11-03-2026 11:13:14.
Kenmerken
Type:
Woonruimte
Oppervlakte:
82.00 m²
Aantal kamers:
3
Vertrekken
Slaapkamer
9.00 m²
Slaapkamer
15.00 m²
Woonkamer
19.00 m²
Vergelijkbare woningen
Woning aan de Hooikade te Den Haag
Den Haag
€3.590
3 kamers
Woning aan de Amsterdamsestraat te Muiden
Muiden
€1.750
2 kamers
Woning aan de Pannesheiderstraat te Kerkrade
Kerkrade
€380
1 kamers
Woning aan de Maaskade te Rotterdam
Rotterdam
€2.350
3 kamers
Woning aan de Markt te Roosendaal
Roosendaal
€650
1 kamers
Woning aan de Langswater te Amsterdam
Amsterdam
€2.900
4 kamers
Meer woningen bekijken?
Ontdek ons volledige aanbod van huurwoningen in Nederland. Van studio's tot gezinswoningen.