Schans 59 - Woudenberg
📍 Woudenberg
🚪 3 kamers
📐 92.04 m²
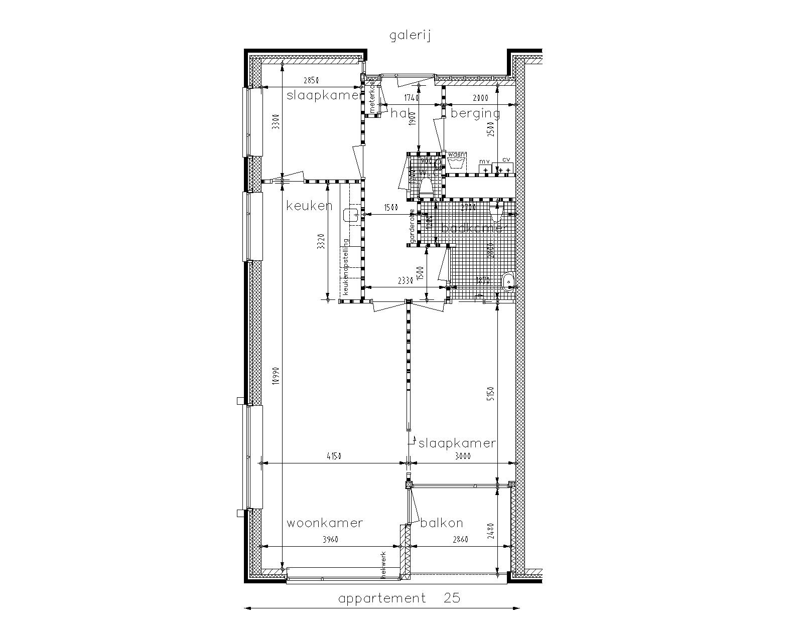
De Schans 59 in WoudenbergIn de verhuur, een mooie senioren appartement op de 2e etage. Met alle voorzieningen in het complex en in de buurt.IndelingHet appartement heeft twee slaapkamers, een ruime badkamer met douche en toilet. In de hal bevindt zich een apart toilet. Ook heeft het appartement een ruime woonkamer en keuken en een balkon met vrij uitzicht.Installaties in de woningDe woning beschikt over mechanische ventilatie en een cv-ketel voor warm water en verwarming.Bezichtig Bezichtiging is verplicht voordat de woning geaccepteerd kan worden.Binding aantonen in de regio EEM:U woont al 2 jaar achtereen in de regio EEM (aantoonbaar met BRP)U werkt minimaal 24 uur voor minimaal 1 jaar in de regio EEM (aantoonbaar) met werkgeversverklaring of contract)U bent zelfstandig ondernemer en uw bedrijf is gevestigd in de regio EEM (aan te tonen met een KVK-uittreksel) *het werk wordt ook uitgevoerd in WoudenbergOf u heeft in de afgelopen 10 jaar, 6 jaar achtereen gewoond in de regio EEM (aantoonbaar met BRP)De eerste 10 kandidaten krijgen een interessepeiling, daarna krijgt u 48 uur de tijd om de binding aan te tonen. Doet u dit niet, dan gaan wij door naar de volgende kandidaten. De voorwaarden kunt u ook teruglezen op DAK: ServiceOverzicht. Benodigde documenten voor verhuring (uiterlijk binnen 2 werkdagen naar aanbieding bij ons binnen zijn)Onderstaande documenten hebben wij nodig voor de verhuring. Deze kunt u uploaden op uw eigen Woningnet account. Of u kunt mailen naar Info@omniawonen.nl onder vermelding van het adres (let op alleen als u een aanbieding krijgt)De meest recente inkomensverklaring van de Belastingdienst 2024 of 2025 (of meest recente definitieve aanslag inkomstenbelasting) van u en van uw eventuele partner (ook als deze geen eigen inkomen heeft) U moet zelf uw BSN nummer wegstrepen. Anders mogen wij deze niet behandelen. BRP van de gezinssamenstelling + woonhistorie op te vragen bij de gemeente. Woonhistorie is ook op te vragen met uw DIGID via mijnoverheid.nlEen verhuurdersverklaring. Deze kunt u opvragen bij uw huidige of uw laatste verhuurder. Heeft u een koopwoning, dan zouden wij graag drie afschriften van de hypotheek willen zien.Antwoord en gegevensformulier digitaal te bereiken via https://www.omniawonen.nl/acceptatieformulier/of op papier via: Acceptatie-en-gegevensformulier.pdf (omniawonen.nl)Bent u gescheiden, niet langer geregistreerd partners of woont u niet meer samen? Dan mag u uw kinderen alleen op uw inschrijving vermelden als zij hun hoofdverblijfplaats bij u hebben of als er sprake is van co-ouderschap. In geval van co-ouderschap mogen beide ouders de kinderen op hun inschrijving vermelden. Op het moment dat u een woning accepteert, vraagt de verhuurder u om aan te tonen dat de kinderen terecht op uw inschrijving staan vermeld. Dit kan aan de hand van een gerechtelijke uitspraak, een echtscheidingsconvenant of een ouderschapsplan.
Kenmerken
Type:
Woonruimte
Oppervlakte:
92.04 m²
Aantal kamers:
3
Energielabel:
A
Vertrekken
Andere kamer
5.00 m²
Berging
5.40 m²
Badkamer
6.80 m²
Keuken
9.60 m²
Slaapkamer
10.50 m²
Slaapkamer
15.50 m²
Woonkamer
30.40 m²
Vergelijkbare woningen
Woning aan de Hooikade te Den Haag
Den Haag
€3.590
3 kamers
Woning aan de Amsterdamsestraat te Muiden
Muiden
€1.750
2 kamers
Woning aan de Pannesheiderstraat te Kerkrade
Kerkrade
€380
1 kamers
Woning aan de Maaskade te Rotterdam
Rotterdam
€2.350
3 kamers
Woning aan de Markt te Roosendaal
Roosendaal
€650
1 kamers
Woning aan de Langswater te Amsterdam
Amsterdam
€2.900
4 kamers
Meer woningen bekijken?
Ontdek ons volledige aanbod van huurwoningen in Nederland. Van studio's tot gezinswoningen.