Sparrenheide 6 - Driebergen-Rijsenburg
📍 Driebergen-rijsenburg
🚪 3 kamers
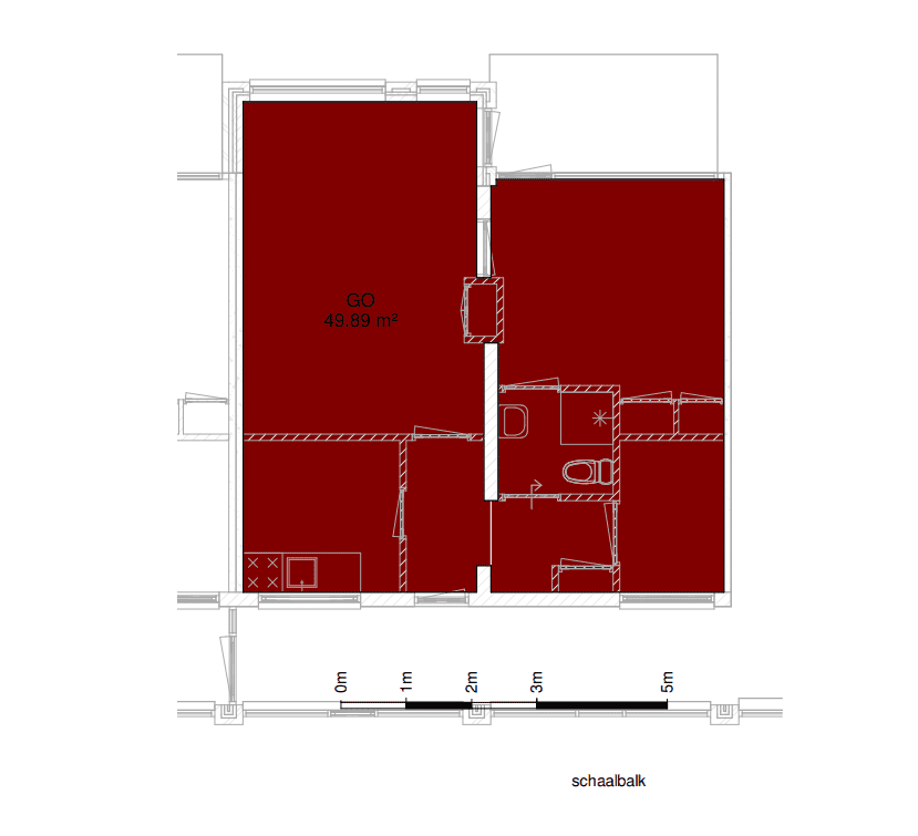
Sparrenheide II te Driebergen-RijsenburgLet op! Dit betreft een seniorencomplex waar een doelgroep wordt gehanteerd van minimaal 65 jaar of ouder. Indien u jonger bent dan 65 jaar, komt u helaas niet in aanmerking voor een woning in dit complex.Bijzonderheden appartementHet betreft een 2-kamerappartement op de begane grond met een oppervlakte van 50m2.Het complexAppartementencomplex ‘Sparrenheide II’ bestaat uit 18 appartementen en is gelegen aan de Sparrenheide 2 tot en met 19 in Driebergen-Rijsenburg. Het betreffen comfortabele woningen, speciaal voor senioren van 65 jaar en ouder.Omgeving en bereikbaarheidDriebergen-Rijsenburg is een charmant dorp gelegen in de provincie Utrecht, in het hart van Nederland. Bekend om zijn groene omgeving, historische gebouwen en aantrekkelijke landschappen, biedt dit dorp een vredige omgeving voor degenen die op zoek zijn naar rust en comfort.Het dorp Driebergen-Rijsenburg ligt op slechts een steenworp afstand van Utrecht, een van de meest bruisende steden van Nederland. Met een korte rit van ongeveer 20 minuten bent u in het centrum van Utrecht, waar u kunt genieten van de vele culturele bezienswaardigheden, winkels en restaurants die de stad te bieden heeft.Voor de bewoners van de seniorenwoningen aan de Sparrenheide zijn er verschillende faciliteiten binnen handbereik. Op loopafstand van het complex vindt u gemakkelijk bereikbare winkels, zoals een supermarkt en lokale boetiekjes. Voor ontspanning en wandelingen zijn er prachtige parken en natuurgebieden in de buurt, zoals het landgoed Kraaybeekerhof en Park Sparrendaal.Voor ouderen die zich per openbaar vervoer willen verplaatsen, biedt Driebergen-Rijsenburg uitstekende mogelijkheden. Het dorp beschikt over een treinstation, station Driebergen-Zeist, dat op korte afstand van het complex te vinden is. Vanaf hier zijn er regelmatige treinverbindingen naar steden als Utrecht, Amsterdam en Arnhem.Daarnaast is er een bushalte op loopafstand van de seniorenwoningen aan de Sparrenheide, waardoor het reizen naar nabijgelegen dorpen en steden eenvoudig en toegankelijk is. De lokale buslijnen bieden een handige manier om de omgeving te verkennen en verbindingen te maken met omliggende plaatsen.VoorwaardenWij hanteren inkomensvoorwaarden voor deze woning. Wij zullen daarom diverse officiële en actuele documenten van u vragen. Let er op dat u aanlevert wat gevraagd wordt, dat voorkomt teleurstelling achteraf.Bij de woningen met een sociale huur gelden de algemene voorwaarden van de sociale huurwoningen, waarbij er inkomenseisen van toepassing zijn. U kunt een sociale huurwoning huren als uw inkomen passend is bij de huur. De toewijzing vind plaats door middel van passend toewijzen. Voor de woningen in dit complex is er sprake van een minimale en een maximale inkomensgrens om in aanmerking te kunnen komen. De inkomensgrenzen kunt u vinden via: https://www.rijksoverheid.nl/onderwerpen/huurwoning-zoeken/vraag-en-antwoord/wanneer-kom-ik-in-aanmerking-voor-een-sociale-huurwoningDe woning wordt toegewezen aan de meest passende kandidaat. Dat is in ieder geval een kandidaat die de volledige inschrijvingsprocedure heeft doorlopen.
Kenmerken
Type:
Woonruimte
Aantal kamers:
3
Energielabel:
C
Vertrekken
Slaapkamer
3.60 m²
Slaapkamer
12.20 m²
Woonkamer
18.20 m²
Vergelijkbare woningen
Woning aan de Hooikade te Den Haag
Den Haag
€3.590
3 kamers
Woning aan de Amsterdamsestraat te Muiden
Muiden
€1.750
2 kamers
Woning aan de Pannesheiderstraat te Kerkrade
Kerkrade
€380
1 kamers
Woning aan de Maaskade te Rotterdam
Rotterdam
€2.350
3 kamers
Woning aan de Markt te Roosendaal
Roosendaal
€650
1 kamers
Woning aan de Langswater te Amsterdam
Amsterdam
€2.900
4 kamers
Meer woningen bekijken?
Ontdek ons volledige aanbod van huurwoningen in Nederland. Van studio's tot gezinswoningen.