+6
Terschellingkade 136 - Amersfoort
📍 Amersfoort
🚪 2 kamers
📐 50.00 m²
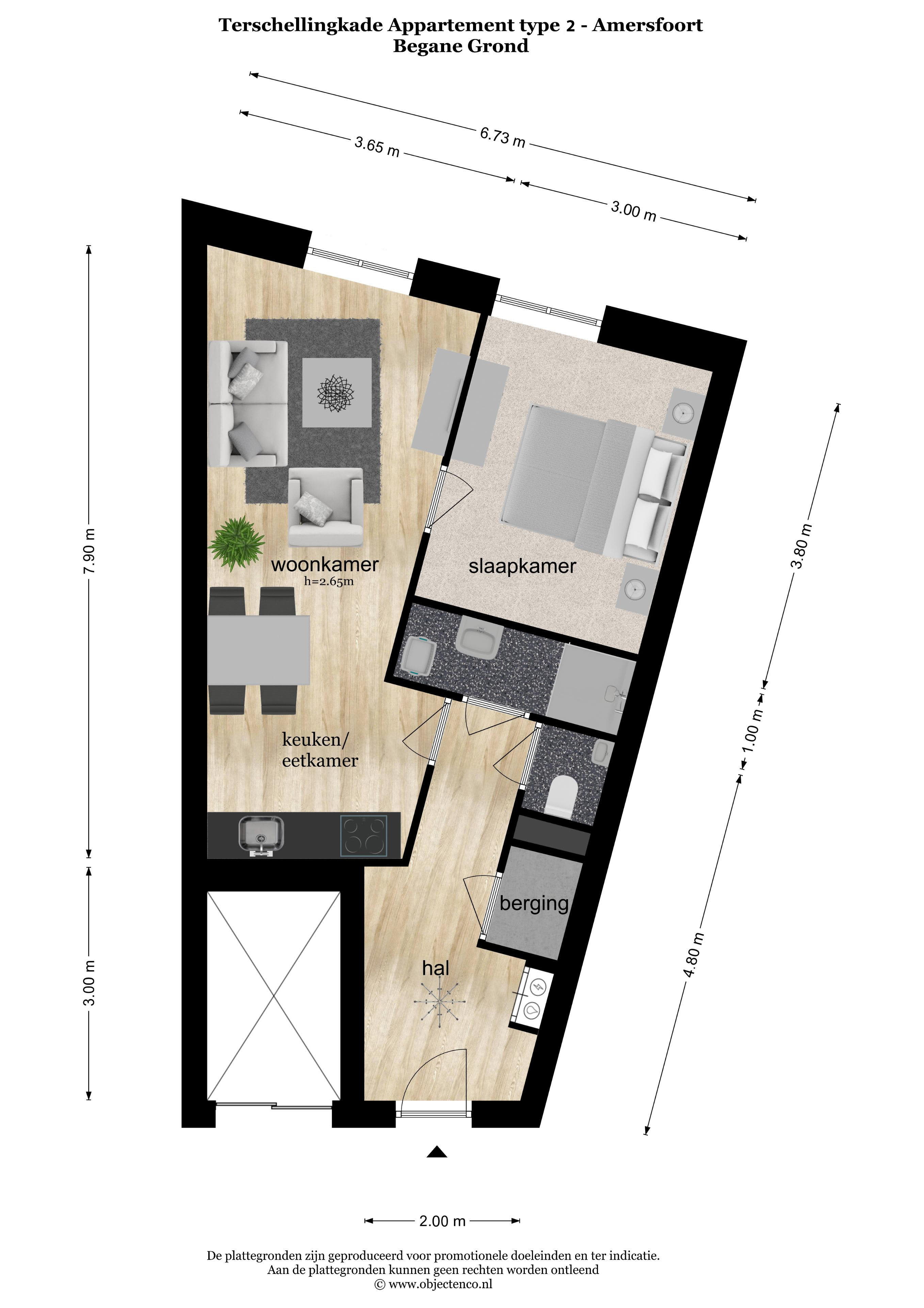
In het oostelijke en tevens nieuwste deel van de wijk Vathorst wordt dit appartement in dit prachtig appartementencomplex met 28 huurwoningen aangeboden. Het betreft huisnummer 136, een appartement op de begane grond. Laak III te Vathorst Door de architectuur heeft het complex vanaf de buitenkant de uitstraling van een pand uit een van de oud Hollandse watersteden. Binnen bevinden zich 27 tweekamerappartementen en 1 studio, verdeeld over de begane grond en drie verdiepingen. Aan de achterzijde van het complex bevindt zich een afgesloten binnentuin voor gezamenlijk gebruik. Hier kunt u, met uw medebewoners, vertoeven en is er een gemeenschappelijke berging aanwezig waar de fietsen gestald kunnen worden. Tweekamerappartement Het tweekamerappartement is uitermate geschikt voor een één- of tweepersoonshuishouden! Het appartement heeft een gebruiksoppervlakte van rond de 50 m2 en is ingedeeld met een woonkamer met open keuken, één slaapkamer en een betegelde badkamer met een apart toilet. De keuken is volledig uitgerust met inbouwapparatuur. Verder zal het appartement kaal aan u opgeleverd worden. De wanden zijn behangklaar en u kunt zelf een vloerafwerking naar wens plaatsen. De woning voldoet aan energielabel A en wordt verwarmd door middel van stadsverwarming. OmgevingHet appartementencomplex is gelegen in het oostelijke deel van Vathorst. Dagelijkse voorzieningen zoals winkels en sportclubs liggen op loopafstand van het complex. Het centrum van Amersfoort bereikt u op de fiets in 20 minuten. Daarbij heeft de buurt een goede ontsluiting; u kunt gemakkelijk op de trein stappen vanaf station Amersfoort Vathorst en met de auto bent u snel op weg door nabije aansluiting op de A1 en de A28.
Kenmerken
Type:
Woonruimte
Oppervlakte:
50.00 m²
Aantal kamers:
2
Energielabel:
A
Vertrekken
Slaapkamer
11.40 m²
Woonkamer
28.84 m²
Vergelijkbare woningen
Appartement - Stadsring/Amersfoort (€2750.00/83.00m2)
Amersfoort
€2.750
3 kamers
Huurwoning - Kuinrestraat/Amersfoort (€2500.00/150.00m2)
Amersfoort
€2.500
6 kamers
Appartement - Rietzangerstraat/Amersfoort (€865.00/89.00m2)
Amersfoort
€865
4 kamers
Appartement - Groningerstraat/Amersfoort (€1905.00/118.00m2)
Amersfoort
€1.905
3 kamers
Huurwoning - Triangelstraat/Amersfoort (€1950.00/100.00m2)
Amersfoort
€1.950
3 kamers
Appartement - Ringweg Randenbroek/Amersfoort (€940.00/74.00m2)
Amersfoort
€940
3 kamers
Meer woningen bekijken?
Ontdek ons volledige aanbod van huurwoningen in Nederland. Van studio's tot gezinswoningen.