Van Verschuer Brantslaan 22 - Bennebroek
📍 Bennebroek
🚪 4 kamers
📐 66.00 m²
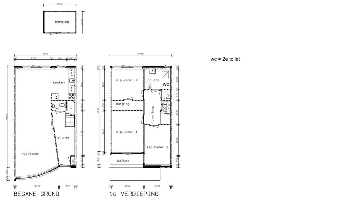
Lichte eengezinswoning met woonkamer met open keuken, drie slaapkamers, balkon én een voor- en achtertuin!LET OP! Belangrijke wijziging als je een woning zoektGa je een woning bezichtigen, verzamel alvast je gegevens. Ook als je geen eerste kandidaat bent. Je hebt maar een paar dagen de tijd. Per 2 februari werken alle woningcorporaties in de regio op dezelfde manier. Dit maakt het toewijzen van een woning duidelijker en makkelijker voor iedereen. Lees meer over wat dit voor jou betekent op deze informatiepagina van MijnWoonservice.Bezichtiging en intakegesprekDe bezichtiging is ingepland op 23 maart 2026 om 10.30 uur (onder voorbehoud). De eerste vijftien kandidaten worden via Woonservice uitgenodigd voor bezichtiging. Kom je kijken? Verzamel dan alvast je gegevens. Het telefonisch intake gesprek is ingepland op 26 maart 2026 om 14:00 uur. WoningOpen keukenKoken op elektraToilet op begane grondBadkamer met tweede toiletBadkamer met wasmachine opstellingSchuur in de achtertuinNieuw keukenblokVia slaapkamer 1 betreed u het balkon (voorzijde)Voortuin, ligging op het noordenAchtertuin, ligging op het zuidenGeen zolderMechanische ventilatieZonnepanelen voor eigen gebruikVerwarming via eigen cv-ketelGratis parkerenBekijk voor meer informatie de kenmerken en de plattegrond van de woningSchenkingenDe volgende zaken zijn als schenking achtergebleven in de woning:Elektrische zonwering met afstandsbediening aan achtergevelToiletrolhouderPlanken in kast slaapkamer tweeBij ondertekening van de huurovereenkomst ben je eigenaar. Gaan ze kapot, dan zijn de kosten voor jou en moet je zelf zorgen dat het wordt gerepareerd of vervangen. Verhuis je? Dan moet je deze schenking(en) verwijderen.OpleveringPre Wonen levert iedere woning op met basiskwaliteit: schoon, heel en veilig. Een bestaande woning heeft altijd gebruikssporen van voorgaande huurder(s). Zelf knapt u de woning op naar uw zin en smaak. Denk hierbij aan het leggen van vloeren (minimaal 10 decibel reducerend), schilderen/behangen van muren, deuren, (raam)kozijnen en plafonds. Dit mag u van uw nieuwe huurwoning verwachten - Pré Wonen.De oplevering van de woning kan afwijken van de advertentietekst, de plattegrond, de foto’s en de bezichtiging in verband met eventuele werkzaamheden. Aan deze advertentie kunt u geen rechten ontlenen.BuurtValt onder de Gemeente BloemendaalGroene wijkBoodschappen in kleine centrum van BennebroekIn de buurt zitten wel kapperszaken, een ijssalon en een aantal restaurants. Centrum van Haarlem, strand en de zee binnen 20 minuten met de auto bereikbaar
Kenmerken
Type:
Woonruimte
Oppervlakte:
66.00 m²
Aantal kamers:
4
Energielabel:
A
Vertrekken
Slaapkamer
6.74 m²
Slaapkamer
8.39 m²
Slaapkamer
11.40 m²
Woonkamer
27.90 m²
Vergelijkbare woningen
Woning aan de Hooikade te Den Haag
Den Haag
€3.590
3 kamers
Woning aan de Amsterdamsestraat te Muiden
Muiden
€1.750
2 kamers
Woning aan de Pannesheiderstraat te Kerkrade
Kerkrade
€380
1 kamers
Woning aan de Maaskade te Rotterdam
Rotterdam
€2.350
3 kamers
Woning aan de Markt te Roosendaal
Roosendaal
€650
1 kamers
Woning aan de Langswater te Amsterdam
Amsterdam
€2.900
4 kamers
Meer woningen bekijken?
Ontdek ons volledige aanbod van huurwoningen in Nederland. Van studio's tot gezinswoningen.