Verlengde Oude Veenendaalseweg 34G - Rhenen
📍 Rhenen
🚪 2 kamers
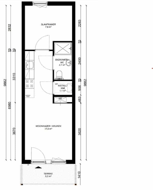
Energiezuinige flexwoning met 1 slaapkamer Het project Flexwoningen zijn woningen die voor een bepaalde tijd gebouwd worden. De gemeente Rhenen aan de rand van Rhenen vijftien flexwoningen geplaatst voor ca. 9 jaar. Rhenam Wonen verhuurt en beheert de flexwoningen voor de gemeente. Vijf flexwoningen zijn gereserveerd voor bijzondere doelgroepen. De andere tien flexwoningen worden regulier verdeeld via Huiswaarts. Doelgroep De flexwoningen zijn bestemd voor eenpersoonshuishoudens. Voor meer informatie over de toewijzing zie de voorwaarden en spelregels. Woningzoekenden met een lokale binding (economische of maatschappelijke binding) aan de gemeente Rhenen krijgen voorrang (zie huiswaarts.mijndak.nl voor meer informatie). Voldoet u hieraan? Vink de binding aan in uw inschrijving bij Huiswaarts voordat u reageert op de flexwoningen. Planning kijkmoment en verhuur Er is een kijkmoment gepland voor belangstellenden. Op maandag 13 oktober van 16-17.30u is één van de flexwoningen opengesteld voor bezichtiging. U bent van harte welkom. De sleuteluitgifte van de woningen is op vrijdag 31 oktober a.s. Reserveer deze data alvast in uw agenda. Behoud inschrijftijd Huiswaarts Normaalgesproken verdwijnt uw inschrijving in Huiswaarts op het moment dat u een woning accepteert. Bij de flexwoningen is dat niet het geval. Uw inschrijving bij Huiswaarts blijft gehandhaafd na acceptatie van een flexwoning. De woningen De tweekamerwoningen hebben een aparte slaapkamer, badkamer met toilet, keuken, technische ruimte voor de warmtepomp met opstelplaats voor de wasmachine, duurzame installaties. De keuken is alleen geschikt voor koken op inductie (kookapparaat dient u zelf aan te schaffen). Een afzuigkap is aanwezig. De woningen zijn goed geïsoleerd, gasloos en voorzien van zonnepanelen. Het terrein Op het terrein is een ondergrondse vuilcontainer voor restafval aanwezig. Parkeren kan op het parkeerterrein nabij de woningen. Op het terrein is verder een gemeenschappelijke tuin en (fietsen)berging aanwezig.
Kenmerken
Type:
Woonruimte
Aantal kamers:
2
Energielabel:
A+++
Vertrekken
Slaapkamer
8.00 m²
Woonkamer
17.00 m²
Vergelijkbare woningen
Woning aan de Hooikade te Den Haag
Den Haag
€3.590
3 kamers
Woning aan de Amsterdamsestraat te Muiden
Muiden
€1.750
2 kamers
Woning aan de Pannesheiderstraat te Kerkrade
Kerkrade
€380
1 kamers
Woning aan de Maaskade te Rotterdam
Rotterdam
€2.350
3 kamers
Woning aan de Markt te Roosendaal
Roosendaal
€650
1 kamers
Woning aan de Langswater te Amsterdam
Amsterdam
€2.900
4 kamers
Meer woningen bekijken?
Ontdek ons volledige aanbod van huurwoningen in Nederland. Van studio's tot gezinswoningen.