+5
Vuurdoornstraat 108 - Opheusden
📍 Opheusden
🚪 4 kamers
📐 94.00 m²
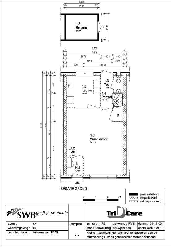
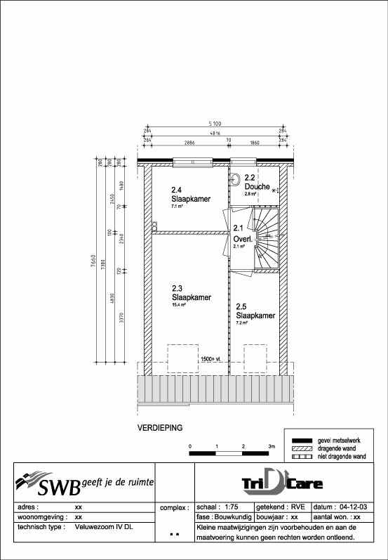
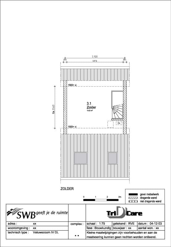
Bent u op zoek naar een tussenwoning in het dorp Opheusden?Deze woning aan de Vuurdoornstraat biedt u een comfortabele en zorgeloze leefomgeving, perfect afgestemd op uw wensen.Indeling van de woningWoonkamer: gezellige woonkamer uitkijkend op de straatKeuken: direct aansluitend op de woonkamer vindt u gesloten keuken, deze wordt gerenoveerd. Er komt een wit blok met anctraciet blad in. Daarnaast wordt er een perilex-aansluiting gemaakt voor elektrisch koken.Slaapkamer: op de 1e verdieping zijn 3 slaapkamers aanwezig met een vaste trap naar zolder met extra ruimteBadkamer: de badkamer is standaard. Deze wordt gerenoveerd.Tuin: er is een voor- en achtertuin aanwezig. .Voorzieningen in de buurtOpheusden is een wat groter dorp in de gemeente Neder-Betuwe en heeft een eigen winkelcentrum met supermarkten en diverse andere winkels. Er wonen veel gezinnen in dit dorp en er zijn maar liefst vier basisscholen, waarvan drie christelijke. Opheusden is dan ook een kerkdorp, het is opgebouwd rondom de dorpskerk. Aan de zuidkant van Opheusden loopt de spoorlijn met het daaraan gelegen station Opheusden. Ten zuiden daarvan liggen de Betuweroute en rijksweg A15, het dorp Dodewaard ligt aan de andere zijde. Voor uitgebreide informatie over de buurt kunt u terecht op www.postcodebijadres.nl.Overname van spullenDe huidige bewoner biedt zaken ter overname aan. U kunt dit bespreken tijdens de bezichtiging.Voor wie is deze woning geschikt?Deze woning is speciaal bedoeld voor meerdere doelgroepen. Stellen, (eenouder) gezinnen. Controleer of deze woning geschikt is voor uw situatie door in te loggen en uw inkomensgegevens in te vullen.Wilt u weten of u in aanmerking komt voor huurtoeslag? Maak een proefberekening via www.toeslagen.nl om verrassingen te voorkomen.Hoe verloopt het proces?Na sluiting van de reactietermijn ontvangen de eerste 5 kandidaten een uitnodiging voor de bezichtiging. Indien zij geen belangstelling hebben of niet voldoen aan de voorwaarden, worden de volgende kandidaten benaderd.Let op: bij woningen die gerenoveerd moeten worden kunnen extra kosten ontstaan. Bezichtiging is in dat geval pas mogelijk na renovatie. Wij informeren u hierover zodra er meer duidelijkheid is. VoorwaardenBij acceptatie van de woning moet u uw inkomen aantonen met een inkomensverklaring over 2023 of 2024. Dit geldt ook voor een eventuele mede-inschrijver en andere volwassenen die meeverhuizen.Vraag uw inkomensverklaring eenvoudig aan via www.mijnbelastingdienst.nl met uw DigiD.Heeft u geen DigiD? Bel dan de Belastingdienst via 0800-0543 met uw burgerservicenummer bij de hand. U ontvangt de verklaring binnen vijf werkdagen.Houd er rekening mee dat u bij het reageren op de woning al over de inkomensverklaring beschikt en het bedrag uit de verklaring in uw profiel heeft ingevuld.
Kenmerken
Type:
Woonruimte
Oppervlakte:
94.00 m²
Aantal kamers:
4
Vertrekken
Slaapkamer
7.00 m²
Slaapkamer
7.00 m²
Slaapkamer
13.00 m²
Woonkamer
25.00 m²
Vergelijkbare woningen
Woning aan de Hooikade te Den Haag
Den Haag
€3.590
3 kamers
Woning aan de Amsterdamsestraat te Muiden
Muiden
€1.750
2 kamers
Woning aan de Pannesheiderstraat te Kerkrade
Kerkrade
€380
1 kamers
Woning aan de Maaskade te Rotterdam
Rotterdam
€2.350
3 kamers
Woning aan de Markt te Roosendaal
Roosendaal
€650
1 kamers
Woning aan de Langswater te Amsterdam
Amsterdam
€2.900
4 kamers
Meer woningen bekijken?
Ontdek ons volledige aanbod van huurwoningen in Nederland. Van studio's tot gezinswoningen.