Merce Cunninghamplantsoen 11 - Amsterdam
📍 Amsterdam
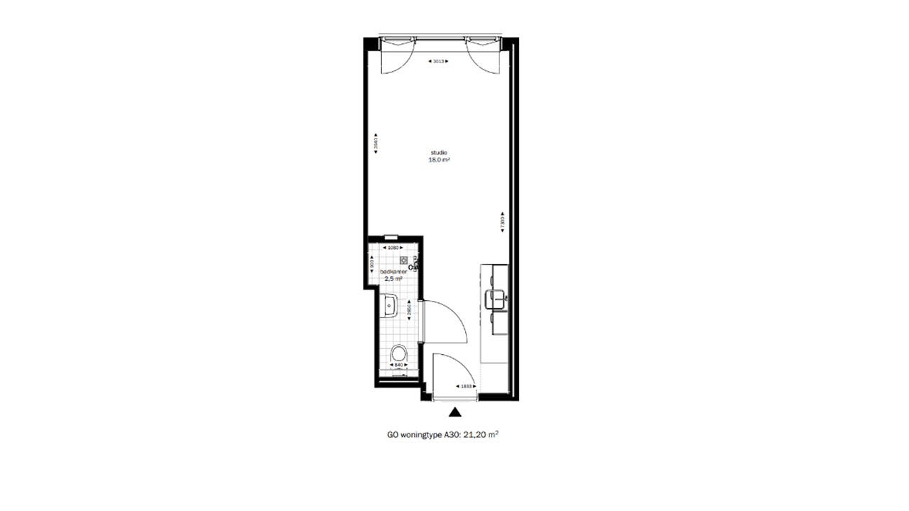
Cluster A bevat 36 woningen van 21 m2 die bestemd zijn voor jongeren.Woning: Studio- Eigen keuken- Eigen badkamer- Perilex aansluiting- Gezamenlijke wasserette- Inpandige fietsenstalling- Gedeelde commonroom en game room- Geen wasmachine aansluitingServicekostenIn de servicekosten zijn water, elektra, internet, inboedelverzekering en verwarming inbegrepen.OpleveringDe woning wordt ongestoffeerd en ongemeubileerd opgeleverd. De huurder dient zelf te schilderen/behangen en zelf een vloer aan te brengen.PlattegrondDe indeling van de woningen is zoals aangegeven op de plattegrond. De oppervlakte kan per woning verschillen. (Aan de plattegrond kunnen geen rechten worden ontleend.)ParkerenIn de wijk zijn beperkt parkeerplekken beschikbaar. Voor meer informatie kun je kijken op de website van de gemeente Amsterdam.Toewijzingseisen-   Leeftijd 23 t/m 27 jaar bij ingang huurcontract-   Geen voltijd student-   Geen jongeren met een kind/kinderenDocumentenZorg dat jouw documenten tijdig verzameld worden. Als je een woning krijgt aangeboden zal je gevraagd worden om de volgende documenten:-   Kopie legitimatiebewijs-   Inkomensverklaring over 2024 of 2025-   Recente inkomensspecificatie van de afgelopen 3 maandenAanbiedingsprocesDUWO zal jou contacteren via e-mail als je een woning krijgt aangeboden. Zorg dat je jouw inbox (en ongewenste mails) goed in de gaten houdt.BezichtigingEr zal een bezichtiging plaatsvinden kort na de sluitingsdatum van de advertentie. Als je wordt uitgenodigd voor de bezichtiging ontvang je een e-mail van DUWO. Let op: door te reageren op deze woning geef je aan interesse te hebben in de bezichtiging.HuurtoeslagEventuele huurtoeslag is afhankelijk van uw inkomen en de huurprijs van deze woning. Doe daarom altijd een proefberekening op de website van de Belastingdienst.Startdatum De woningen zijn per direct beschikbaar. De startdatum van het contract zal kort na de bezichtiging vallen. De advertentie is gewijzigd op 02-04-2026 15:32:29.
Kenmerken
Vergelijkbare woningen
Appartement - Emmy Andriessestraat/Amsterdam (€3797.00/185.00m2)
Amsterdam
€3.797
4 kamers
Studio - J.H. Hisgenpad/Amsterdam (€2310.00/86.00m2)
Amsterdam
€2.310
3 kamers
Appartement - Sint Annenstraat/Amsterdam (€2250.00/92.00m2)
Amsterdam
€2.250
3 kamers
Appartement - Van Spilbergenstraat/Amsterdam (€2500.00/61.00m2)
Amsterdam
€2.500
3 kamers
Appartement - Tweede Looiersdwarsstraat/Amsterdam (€3750.00/132.00m2)
Amsterdam
€3.750
4 kamers
Appartement - Berenstraat/Amsterdam (€2650.00/60.00m2)
Amsterdam
€2.650
3 kamers
Meer woningen bekijken?
Ontdek ons volledige aanbod van huurwoningen in Nederland. Van studio's tot gezinswoningen.